|
中古戸建
[価格]
1,580万円
|
||||
|---|---|---|---|---|
| 所在地 | 沿線/駅 バス徒歩 |
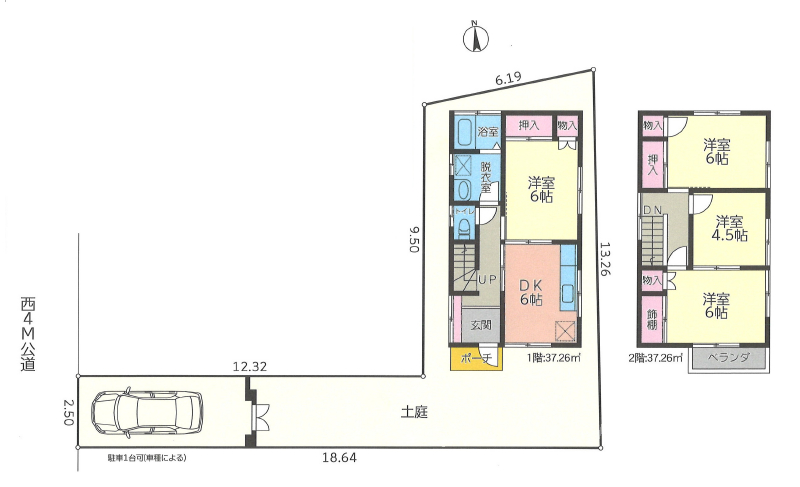
構造 間取 |
土地面積 建物面積 |
築年月 引渡時期 |
| 桶川市泉二丁目 | JR高崎線(湘南新宿ライン・上野東京ライン)/桶川駅 徒歩13分 |
木造 4DK |
109.09m² 74.52m² |
1980/01 相談 |

| 物件番号 | 21863 | ||
|---|---|---|---|
| 交通 | JR高崎線(湘南新宿ライン・上野東京ライン) 桶川駅まで 徒歩13分 | 学区 | 桶川小 510m 桶川中 610m |
| 建ぺい率 | 60% | 容積率 | 200% |
| 地目 | 宅地 | 用途地域 | 準住居地域 |
| 取引態様 | 仲介 | 私道面積 | - |
| 土地権利 | 所有権 | 借地料 | - |
| 間取詳細 | 諸費用 | ||
| 接道 | 西 4m(幅員) 公道 2.5m(接面) | ||
| 特色 | 市街化区域、駐車場、公営水道、公共本下水、都市ガス、JR高崎線 西口側、学区:桶川小、学区:桶川中 | ||
| 取引条件有効期限 | 2025年12月08日 | ||
|
地図を右クリックでルート検索が可能です。
|