18108:売地
| 価格 | 1,953万円 |
|---|---|
| 所在地 | 上尾市中分一丁目 |
| 交通 | JR高崎線(湘南新宿ライン・上野東京ライン) 北上尾駅まで 徒歩35分 |
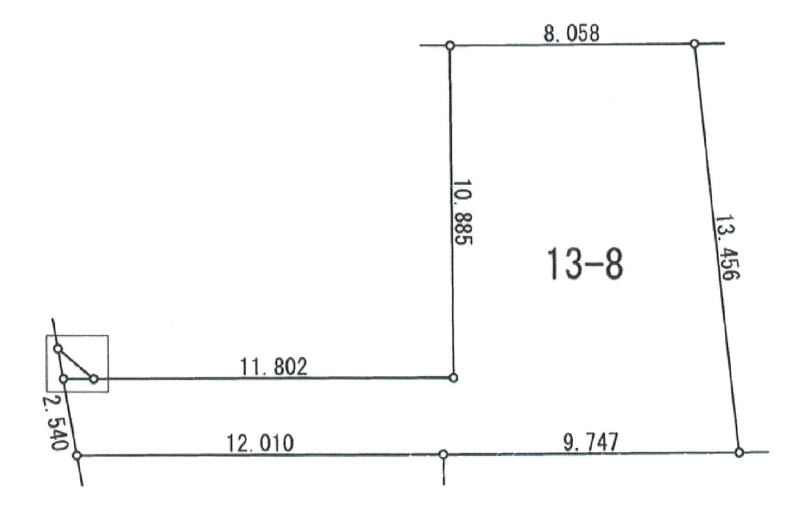
| 土地面積 | 184.63m²(55.85坪) |
| 私道面積 | - |
| 坪単価 | 34.96万円 |
| 学区 | 小学校区:大石小 900m 中学校区:大石中 2,000m |
| 建ぺい率 | 50% |
|---|---|
| 容積率 | 100% |
| 地目 | 宅地 |
| 用途地域 | 第二種低層住居専用地域 |
| 現況 | 上物有 |
| 土地権利 | 所有権 |
| 取引態様 | 仲介 |
| 引渡時期 | 相談 |
| セットバック | |
|---|---|
| 接道 | 西 8.3m(幅員) 公道 3.5m(接面) |
| 諸費用 | |
| 国土法届出 | |
| 都市計画 | 市街化区域 |
| 他法条例 | |
| 建築条件 | |
| 取引条件有効期限 | 令和07年12月22日 |
特色
市街化区域、建築条件なし、公営水道、公共本下水、プロパンガス、JR高崎線 西口側、学区:大石小、学区:大石中
コメント
・・上尾・・JR高崎線(湘南新宿ライン・上野東京ライン)上尾駅西口側、上尾市中分一丁目13-9の売土地です。★上物がございます(-_-;)☆建築条件はございません。お好きなハウスメーカーで建築できます。
※上尾市内、他の売土地・不動産物件情報はこちらから
接道は、県道さいたま鴻巣線なので車庫入れは大変かも(-_-;)旗竿型の敷地になります。
周辺地図
位置情報に関するご注意:現在位置情報は精査中の為、正確ではない場合があります。あくまで参考程度の情報となります。







