45048:中古戸建
| 価格 | 1,888万円 |
|---|---|
| 所在地 | 北本市本町三丁目 |
| 交通 | JR高崎線(湘南新宿ライン・上野東京ライン) 北本駅まで 徒歩12分 |
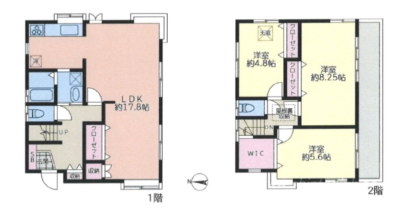
| 間取 | 3LDK |
| 土地面積 | 109.05m²(32.98坪) |
| 建物面積 | 96.88m²(29.3坪) |
| 私道面積 | - |
| 築年月 | 1994/07 |
| 学区 | 小学校区:西小(北本) 900m 中学校区:北本中 750m |
| 建物構造 | 木造 |
|---|---|
| 階建 | 地上2階建 |
| 建ぺい率 | 60% |
| 容積率 | 200% |
| 地目 | 宅地 |
| 用途地域 | 第一種住居地域 |
| 土地権利 | 所有権 |
| 取引態様 | 仲介 |
| 引渡時期 | 相談 |
| セットバック | |
|---|---|
| 接道 | 北西 |
| 諸費用 | |
| 他法条例 | |
| 建築確認番号 | |
| 取引条件有効期限 | 令和07年11月29日 |
特色
市街化区域、駐車場、公営水道、公共本下水、都市ガス、JR高崎線 西口側、学区:西小(北本)、学区:北本中
コメント
・・北本・・JR高崎線(湘南新宿ライン・上野東京ライン)北本駅西口徒歩12分、北本市本町三丁目124-5に建つ、1994年7月築 3LDKのお家です。
北本市の中古戸建て 不動産物件情報はこちらから
リフォーム済物件情報はこちらから
位置指定道路奥のお家、外装工事の他、キッチン、ユニットバス、洗面化粧台、トイレ新品交換、フローリング上貼り、クロス貼替、ハウスクリーニング等のリフォームを実施しております。
周辺地図
位置情報に関するご注意:現在位置情報は精査中の為、正確ではない場合があります。あくまで参考程度の情報となります。










