| 物件コード 写真画像 |
所在地 | 価格 | バス 徒歩 |
土地面積 建物面積 |
現況 間取 |
建ぺい率1 容積率1 |
詳細 | 画像 |
|---|---|---|---|---|---|---|---|---|
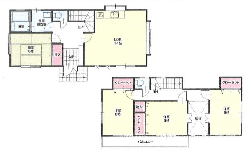
![]() 45187 |
上尾市大字久保 | 1,480万円 | − 24分 |
89.25m2 79.91m2 |
空家 4LDK |
60% 200% |
|
![]() ![]()
|
| ・・上尾・・JR高崎線(湘南新宿ライン・上野東京ライン)桶川駅東口徒歩24分、上尾市大字久保457-147に建つ、1993年1月築 4LDKのお家です。 ※上尾市内、他にも中古戸建て・不動産物件情報がございます。 リフォーム済物件情報はこちらから 青葉台団地内、前面道路は南西向き幅員4m、自動車のすれ違いは厳しいです。よこづか眼科が近くです。※クロス貼替、畳表替え、ハウスクリーニング等のリフォームを実施しております、 |
||||||||
![]() 45188 |
北本市中丸七丁目 | 1,499万円 | − 33分 |
154.45m2 98.95m2 |
空家 4LDK |
50% 80% |
|
![]() ![]()
|
| ・・北本・・JR高崎線(湘南新宿ライン・上野東京ライン)桶川駅東口徒歩33分、北本市中丸七丁目162-6に建つ、平成10年6月築 4LDKのお家です。 北本市の中古戸建て 不動産物件情報はこちらから シンタ二、Check!!国道17号から50m程、地下を通る圏央道からも50m程の場所、旗竿型の敷地になります。前面道路は住人以外の通行がほとんどなく、落ち着いた環境です。 |
||||||||
![]() 45190 |
北本市東間七丁目 | 1,880万円 | − 25分 |
97.39m2 98.54m2 |
空家 2LDK |
50% 80% |
|
![]() ![]()
|
| ・・北本・・JR高崎線(湘南新宿ライン・上野東京ライン)北本駅東口徒歩25分、北本市東間七丁目28-3に建つ、平成13年6月築 2LDK+ガレージのお家です。 北本市の中古戸建て 不動産物件情報はこちらから シンタ二、Check!!国道17号と、旧中山道の間のエリア、閑静な住宅街です。2階にLDK、浴室があるお家です。※平成31年1月に、LDKのクロス貼替、2重サッシ(LDK)、バルコニーのテラス屋根設置等の工事を実施しております。 |
||||||||





