45096:中古戸建
| 価格 | 1,580万円 |
|---|---|
| 所在地 | 桶川市泉二丁目 |
| 交通 | JR高崎線(湘南新宿ライン・上野東京ライン) 桶川駅まで 徒歩13分 |
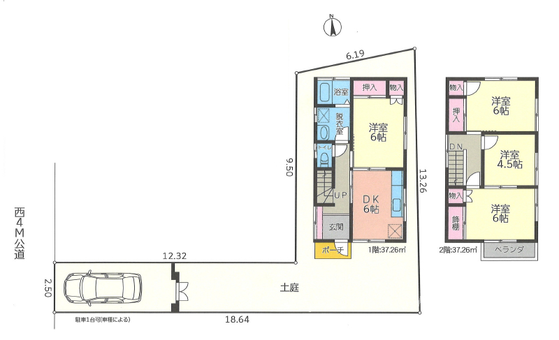
| 間取 | 4DK |
| 土地面積 | 109.09m²(32.99坪) |
| 建物面積 | 74.52m²(22.54坪) |
| 私道面積 | - |
| 築年月 | 1980/01 |
| 学区 | 小学校区:桶川小 510m 中学校区:桶川中 610m |
| 建物構造 | 木造 |
|---|---|
| 階建 | 地上2階建 |
| 建ぺい率 | 60% |
| 容積率 | 200% |
| 地目 | 宅地 |
| 用途地域 | 準住居地域 |
| 土地権利 | 所有権 |
| 取引態様 | 仲介 |
| 引渡時期 | 相談 |
| セットバック | |
|---|---|
| 接道 | 西 4m(幅員) 公道 2.5m(接面) |
| 諸費用 | |
| 他法条例 | |
| 建築確認番号 | |
| 取引条件有効期限 | 令和08年1月23日 |
特色
市街化区域、駐車場、公営水道、公共本下水、都市ガス、JR高崎線 西口側、学区:桶川小、学区:桶川中
コメント
・・桶川・・JR高崎線(湘南新宿ライン・上野東京ライン)桶川駅西口徒歩13分、桶川市泉二丁目10-3に建つ、昭和55年築 4DKのお家です。
※この他の桶川市内中古戸建て 不動産物件情報はこちらから
リフォーム済物件情報はこちらから
県道12号 川越栗橋線 べにばな陸橋近くの旗竿型の敷地、玄関ドア交換、キッチン、洗面台、トイレ交換、クロス、床一部貼替、ハウスクリーニング等のリフォームを実施しております。
周辺地図
位置情報に関するご注意:現在位置情報は精査中の為、正確ではない場合があります。あくまで参考程度の情報となります。






